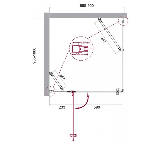
ДУШЕВОЙ УГОЛ BELBAGNO KRAFT-AH-12-90/100-C-CR-L 900X1000 ХРОМ, ПРОЗР.СТЕКЛО
- Артикул: KRAFT-AH-12-90/100-C-Cr-L
- Производитель: BelBagno
- Страна: Италия
- Гарантия: 3 года
Товар в наличии
57 500
Доставка: 3-5 дней, при наличии товара на складе поставщика, подробнее
Способы оплаты: картой, безналичный расчет, подробнее
Монтаж: пристенный в угол
Возможная установка: на поддон, на пол
Высота: 1950 мм
Форма: прямоугольная
Ориентация: при заказе указывайте ориентацию
Конструкция двери: распашная
Исполнение полотна двери: прозрачное (C)
Количество секций двери: 1
Толщина полотна двери: 6 мм
Цвет профиля: хром
Материал полотна двери: закаленное стекло
Дополнительная информация: поддон приобретается отдельно
Ресурс эксплуатации: 15 лет
Характеристики
Вес
40 кг
По высоте поддона
с низким поддоном
По высоте, см
195
По длине, см
90
По ширине, см
100
По конструкции дверей
с распашными дверьми
По материалу стенок
стекло 6 мм
По размеру
900*1000
По типу
одностворчатые
По форме поддона
прямоугольный
Цвет профиля
хром
Цвет стекла
прозрачный














