ДУШЕВОЙ УГОЛ BELBAGNO SOFT CLOSE-1 1100X900 ОРУЖЕЙНАЯ СТАЛЬ, ПРОЗР.СТЕКЛО
- Артикул: SOFT_CLOSE-1-AH-1-110/90-C-Gm
- Производитель: BelBagno
- Страна: Италия
- Гарантия: 3 года
Товар в наличии
51 200
Доставка: 3-5 дней, при наличии товара на складе поставщика, подробнее
Способы оплаты: картой, безналичный расчет, подробнее
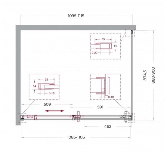
Монтаж: пристенный в угол
Возможная установка: на поддон, на пол
Высота: 2000 мм
Форма: прямоугольная
Ориентация: универсальная
Конструкция двери: раздвижная
Исполнение полотна двери: прозрачное (C)
Количество секций двери: 1
Толщина полотна двери: 8 мм
Цвет профиля: хром (Сr), оружейная сталь (GM)
Материал полотна двери: закаленное стекло
Материал профиля: анодированный алюминий
Особенности: двусторонний доводчик, обеспечивающий мягкое закрывание и открывание двери. Двойные навесные ролики с держателем стекла
Характеристики
Вес
40 кг
По высоте поддона
с низким поддоном
По высоте, см
200
По длине, см
110
По ширине, см
90
По конструкции дверей
с раздвижными дверьми
По материалу стенок
стекло 8 мм
По размеру
1100*900
По типу
одностворчатые
По форме поддона
прямоугольный
Цвет профиля
оружейная сталь
Цвет стекла
прозрачный











