ДУШЕВОЙ УГОЛ BELBAGNO LUCE A 22 1100X1100 ХРОМ, ПРОЗР.СТЕКЛО
- Артикул: LUCE-A-22-80+30-C-Cr
- Производитель: BelBagno
- Страна: Италия
- Гарантия: 3 года
Товар в наличии
57 100
Доставка: 3-5 дней, при наличии товара на складе поставщика, подробнее
Способы оплаты: картой, безналичный расчет, подробнее
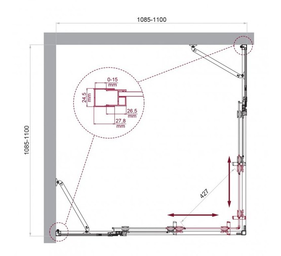
Монтаж: пристенный в угол
Возможная установка: на поддон, на пол
Высота: 1950 мм
Форма: квадратная
Ориентация: универсальная
Конструкция двери: раздвижная
Толщина полотна двери: 6 мм
Цвет профиля: хром (Сr)
Исполнение полотна двери: прозрачное (C), рифленое (Р)
Материал полотна двери: закаленное стекло
Материал профиля: анодированный алюминий
Дополнительная информация: поддон приобретается отдельно
Ресурс эксплуатации: 15 лет
Характеристики
Вес
35 кг
По высоте поддона
с низким поддоном
По высоте, см
195
По длине, см
110
По ширине, см
110
По конструкции дверей
с раздвижными дверьми
По материалу стенок
стекло 6 мм
По размеру
1100*1100
По типу
двустворчатые
По форме поддона
квадратный
Цвет профиля
хром
Цвет стекла
прозрачный













